+5
Sales (74150)

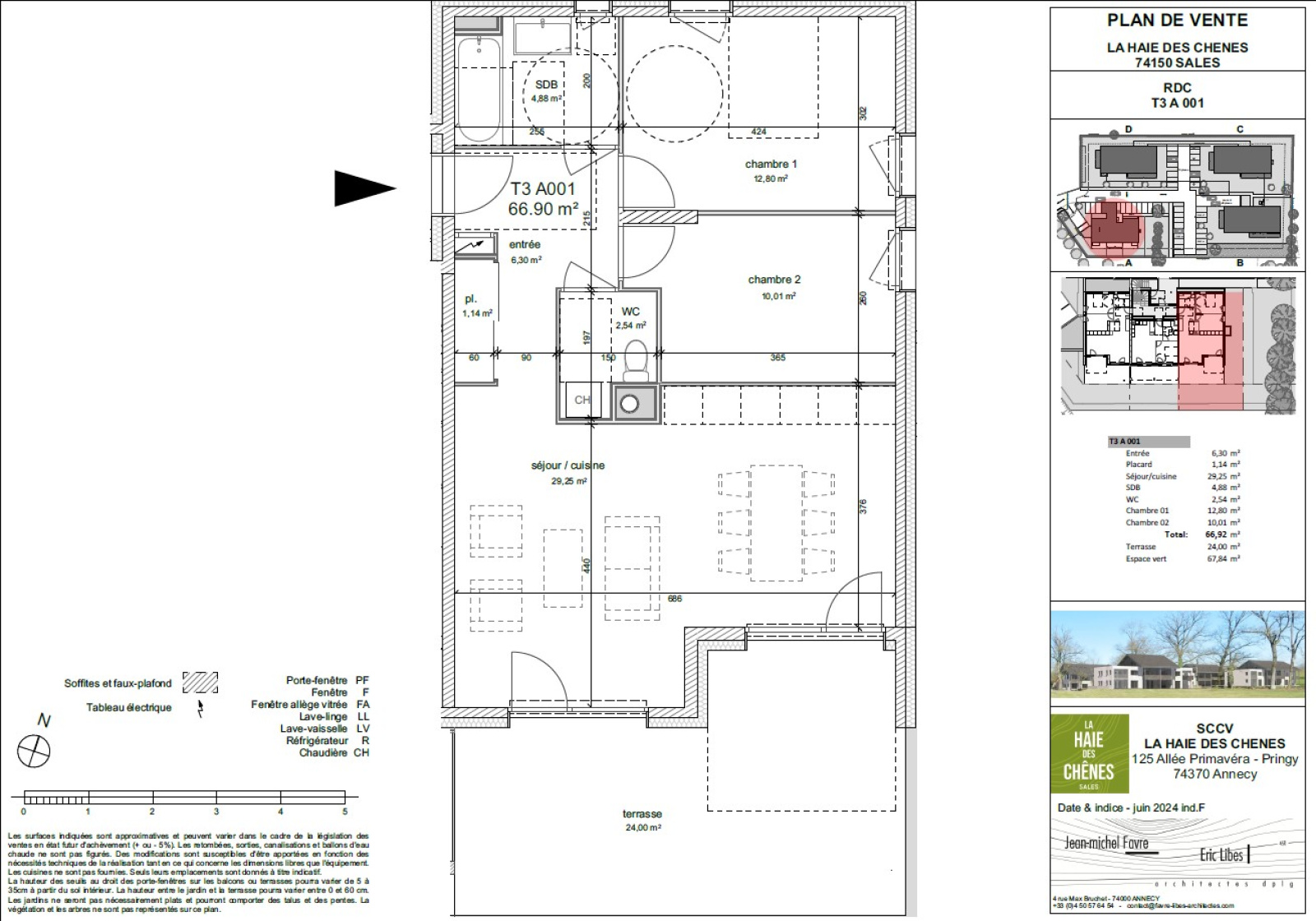
Appartement

305 000 €
Réf 497A001

Au coeur de la commune de SALES, la Haie des Chênes est un ensemble immobilier de quatre petits bâtiments réunissant 31 logements. L’architecture de pays privilégie une faible hauteur et le volume d’une grosse ferme. La conception des appartements est volontairement diversifiée : plein pied avec jardin, duplex avec terrasse spacieuse, du T2 au T4 au sein d’un urbanisme laissant une grande place aux espaces verts. Des efforts ont été fait pour conserver la haie de chênes majestueuse qui crée l’identité des lieux depuis plusieurs générations.Tous les logements bénéficient d’une exposition plein sud sans vis-à-vis.À vous de choisir la différence et le confort.

Bilan énergétique

Diagnostics énergetiques
Consommation énergétique
A B C D E F G
Emission de gaz à effet de serre
A B C D E F G
DPE ANCIENNE VERSION
A propos de ce bien Caractéristiques de ce bien
  • Surface 67 m²
  • 2 chambre(s)

Financier

Informations financières
Prix de vente honoraires TTC inclus 305 000 €

Autour du bien

Découvrez le quartier

Simulation

Calcul des mensualités
* Champs obligatoires
VALMONT Agence